In coordination with D.I.V.I.N.E. Intervention and the City of Minneapolis, Retown introduced ProOne Management to this historic City-owned property and was retained to complete the initial due diligence. Retown worked with Aretta-Rie Johnson the Executive Director of D.I.V.I.N.E. in reshaping a development proposal whereby ProOne would serve as the private investor and property owner in a public private partnership with the City. The plan featured D.I.V.I.N.E. as the long-term tenant to operate a 13-bed shelter, safe home with supportive services to allow the girls to pursue reunification with their families through intensive support services to achieve their goals for family reunification or more independent living, stability, behavior modification, education, employment, mental health, physical health, and life skills training. Ultimately ProOne and the City did not come to an equitable agreement however ProOne and D.I.V.I.N.E. will continue to explore future opportunities. As such, the century old estate at 628 Franklin remains vacant and the City will likely consider demolition if no other reuse arises. It is our hope that a plan emerges to save this historic masonry residential structure adjacent to the historic Straitgate Church along the prominent Franklin Street corridor.

D.I.V.I.N.E. Intervention serve girls in Minnesota who are at-risk of, being sexually trafficked and/or sexually exploited. D.I.V.I.N.E. works to empower girls based on the belief that every girl deserves to love themselves and their body and to have opportunities which allow you to make choices that benefits yourself, your family, and the community. www.divineinstitute.org

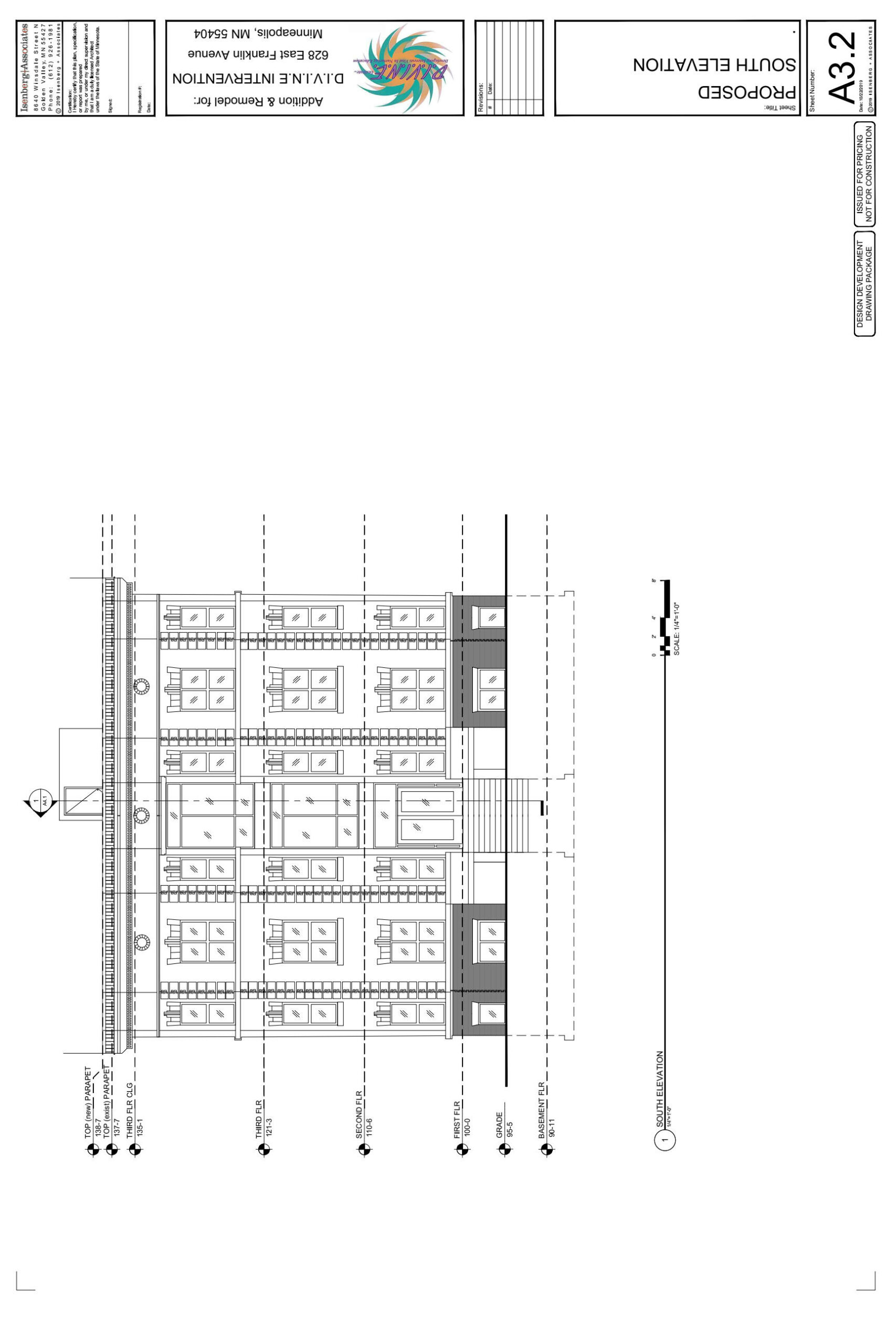
Photograph of exterior of 628 Franklin Street

Photograph of interior of 628 Franklin Street

D.I.V.I.N.E. Intervention engaged Isenberg & Associates as the project architect. The schematic floorplans called for a 13-bed residential shelter including staff offices and amenities.
























